Pobyt na hradě - Stay at the castle
Prožijte si svůj sen - strávit několik nocí na středověkém hradě.
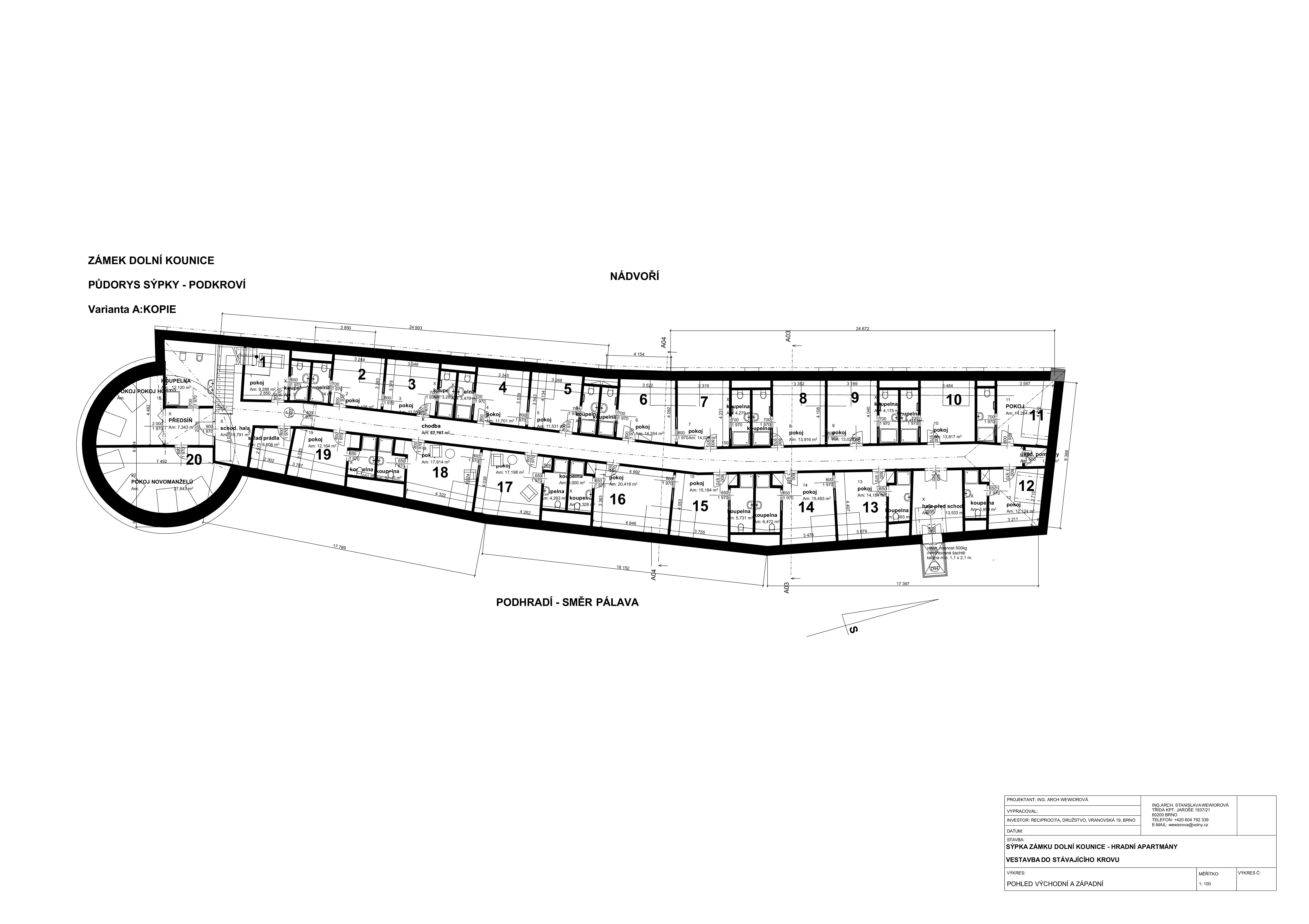
Připravujeme pro Vás pronájem apartmánů na hradě v první etapě v podkroví bývalé dělostřelecké bašty a hradní sýpky. (Na Obr. níže, vlevo je to budova číslo 4). Apartmány budou plně k dispozici od roku 2018. Níže si můžete otevřít soubor, kde je plánek připravovaných apartmánů v podkroví hradu.
Hrad je za provozu opravován, rekonstruován a rozšiřován. Za posledních 5 let je hrad zhruba od konce dubna do konce roku plně vytížen různými akcemi, které se na hradě konají. Vznikla tak naléhavá potřeba ubytování, která dosud na hradě neexistovala a obecně na hradech není obvyklá.
Vybudování ubytování na hradě také umožní, aby turisté mohli hrad používat jako svoji výchozí základnu na výlety do atraktivního okolí jižní Moravy, ale i do Rakouska, Maďarska a dalších okolních destinací.
Z těchto důvodů byl zpracován PROJEKT na postupné vybudování apartmánů v jednotlivých hradních budovách. Nabízíme prvních 20 apartmánů jako příležitost pro bezpečné investování a zhodnocování peněz.
Jednotlivé pokoje mají různou velikost (od 12m2 do 45m2 včetně sociálního vybavení. Všechny pokoje budou vybaveny dvojlůžky a dalším vybavením. K pokojům patří i možnost zabezpečeného parkování, možnost využívání ostatních nabídek hradu, jako je hradní vinárna, posezení u ohně, možnost venkovního grilování, dětské hřiště.
Než bude ubytovací kapacita plně funkční, rádi Vám zajistíme ubytování v Dolních Kounicích nebo blízkém okolí.
Live your dream - spend a night in a medieval castle.
We are building castle attic rooms in the former bastion and the castle granary. (In the picture below it is the building No. 4 on the left). Apartments will be fully available by the end of 2017. Below you can open the file with the plan of castle attic rooms.
The castle is being repaired, renovated and expanded during its operation. Over the past 5 years, the castle has been busy by organising various events. This created an urgent need for accommodation that had not existed yet and is quite unusual to stay at castle in the Czech republic
Newly built apartments will make possible for the touists to use the castlke as a base for their trips into beautiful countryside in the southern Moravia, to nearby Austria (Wienn) or Hungary.
For these reasons, PROJECT on DEVELOPMENT OF ATTIC APARTMENTS in various castle buildings was developed. We are offering sale of the first 20 apartments as an opportunity for safe investment and capitalisation of your money.
The rooms are of different sizes (from 12m2 to 45m2 including amenities). All rooms will be furnished with double beds, storage space, Wi-Fi and other amenities according to the size of the room. Secure parking, possibility to use other castle offers, such as a wine cellar, outdoor BBQ, playground is part of the offer.
We will be happy to provide accommodation in the nearby DOLNI KOUNICE town or its vicinity by the time the accommodation is ready.
Stáhněte si Plánek pokojů v podkroví Download Castle room plan

Po vstupu na hrad na Vás dýchne atmosféra středověku a renesance. Z hradu je překrásný výhled na městečko Dolní Kounice s pozůstatky kláštera Rosa Coeli, který je fotograficky a mysticky přitažlivým místem.
Z hradních apartmánů je přístup do dvou velkých sálů přímo v budově pod apartmány, z nichž přízemí s impozantním stropem z masivního dřeva je otevřené jak do areálu celého hradu, tak do navazujícího podhradí s tanečním party stanem, venkovním otevřeným barem, možnosti opékání a parkových her. S ubytováním na hradě je spojená možnost parkování v uzavřeném areálu hradu, procházky hradním lesem v okolí řeky Jihlavy a návštěva vinných historických sklepů.

Připravujeme podkrovní pokoje - We are preparing attic rooms

Pohled na Dolní Kounice - View of town of Dolní Kounice
Online rezervace
Zarezervujte si místo včas. Rezervaci vám potvrdíme e-mailem.
Please book your stay here. We will confirm the booking by e.mail.
Cancellation policy - Storno podmínky

